Angebote Mietobjekte Gewerbeobjekt

Provisionsfrei! 1a-Lage, direkt am Kurfürstendamm: Bürofläche in reräsentativem Altbau

Ihre Ansprechpartnerin

Susann Linke

Operations Specialist
Immobilienkauffrau (IHK)

5.995 €

Mietpreis

277.82 m²

Fläche

Nebenkosten 1.081 €

Verfügbar ab schon kurzfristig verfügbar oder nach Vereinbarung

Etagenzahl 3

Baujahr 1905

Zustand Gepflegt

Kaution 3 Monatsmieten

Provisionsfrei

Objektbeschreibung

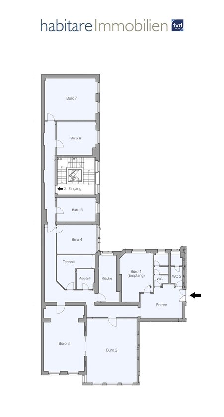
Traumlage Kurfürstendamm! Ihre neue, repräsentative Bürofläche befindet sich in einem eleganten, Kurfürstendamm-typischen Jugendstilaltbau aus der Jahrhundertwende. Die ansprechende Fassade, ein sehr schöner und repräsentativer Eingangsbereich und ein weitläufiges Treppenhaus, das noch die hochherrschaftliche Atmosphäre vergangener Zeiten erhalten konnte, schaffen ein sehr sehenswertes Umfeld. Ihre neue Fläche befindet sich im hellen 3.OG des Vorderhauses mit zum Teil herrlichem Blick auf den Kurfürstendamm - die Fläche wird selbstverständlich über einen Aufzug erreicht. Der Grundriss ist sehr gelungen und zeigt derzeit 7 gut nutzbare Büroräume, bei Bedarf könnte ein achter Büroraum geschaffen werden, indem man die Küche in den kleinen Raum daneben verlegt (auch hier gibt es Anschlüsse). Zwei geräumige Büros zeigen zum Kurfürstendamm, die übrigen Bereiche zum ruhigen Hofbereich. Weiter gibt es einen Technikraum für Ihren Server sowie auch zwei getrennte WC-Anlagen. Bitte beachten Sie in diesem Zusammenhang auch den diesem Exposé beigefügten Grundriss (ohne Gewähr für Richtigkeit). Diese sehenswerte Einheit ist gut belichtet. Die Fläche zeigt einen angenehmen Standard, die Anstriche werden voraussichtlich noch erneuert. Bodenseitig finden Sie robustes Vinylparkett. Die Fläche verfügt über zwei getrennte WC-Anlagen (z.B. intern und für Gäste bzw. geschlechtergetrennte WCs) in angenehmen Fliesungen. In der Küche steht bauseitig bereits eine kleine Einbauküche bereit, diese könnten Sie kostenfrei vom derzeitigen Mieter übernehmen. Ein besonderes Plus: ein am Kurfürstendamm heißbegehrter Kfz-Stellplatz auf dem Hof der Liegenschaft kann für zusätzlich EUR 150,00/Monat mit angemietet werden. Sichern Sie sich Ihre hübsche Bürofläche mit guter Aufteilung in feiner Lage des Kurfürstendamms! Wir freuen uns auf Ihren Kontakt. Die Beheizung erfolgt über Fernwärme. Die Anmietung ist provisionsfrei für den neuen Mieter. Senden Sie uns bei Interesse sehr gern eine kurze eMail aus dem Kontaktformular dieses Exposés, wir rufen Sie dann bei der nächsten Gelegenheit zurück, vielen Dank. Mieten Sie direkt beim Spezialisten: wir sind geprüftes Mitglied des Immobilienverbands Deutschland (IVD) und gewährleisten eine kompetente und engagierte Bearbeitung Ihres Anmietbegehrens. Möchten auch Sie Ihre Eigentumswohnung oder Gewerbefläche verkaufen oder vermieten? Mit langjähriger Markterfahrung und viel Freude an persönlicher Dienstleistung sind wir Ihr professioneller Partner für den erfolgreichen Verkauf oder die Vermietung Ihrer Immobilie. Wir freuen uns auf Ihren Kontakt. habitare Immobilien IVD wurde auch im Jahr 2025 von einer unabhängigen Jury des Fachmagazins Bellevue als „Bellevue Best Property Agents“ ausgezeichnet – nun bereits zum achtzehnten Mal in Folge.

Standort:
Renommierte Geschäftsadresse: das Anwesen befindet sich direkt am Kurfürstendamm. Beste Verkehrsanbindungen sind garantiert: nach nur ca. Metern ist der U-Bahnhof Adenauerplatz schnell erreicht; auch diverse Buslinien stehen fußläufig zur Verfügung. Mit dem Kurfürstendamm liegt Ihnen das wohl bekannteste Einkaufsparadies Berlins direkt zu Füßen; auch für den täglichen Bedarf (z.B. Supermärkte) ist im unmittelbaren Wohnumfeld gesorgt. Sehr gute, repräsentative Geschäftsadresse!

Die Anmietung ist provisionsfrei für den neuen Mieter. Gern laden wir Sie zu einer lohnenswerten Besichtigung ein. Weitere interessante und tagesaktuelle Mietangebote finden Sie auch unter www.habitare-immobilien.de. Zwischenvermietung und Irrtum vorbehalten. Die vorgenannten Mietpreise verstehen sich zzgl. der jeweils gültigen, gesetzlichen Mehrwertsteuer.

Objektstandort

Energieausweis

Verfügbarkeit Liegt vor

Baujahr 1905

Ausweistyp Verbrauchsausweis

Endenergieverbrauch 72 kWh/(m²*a)

Heizungsart Fernwärme

Wesentliche Energieträger Fernwärme

Standortinformation

zu öffentl. Verkehrsmitteln 1 Gehminuten

zum nächsten Hauptbahnhof 10 Gehminuten

zum nächsten Flughafen 20 Gehminuten

zur nächsten BAB 4 Gehminuten


Inserat bearbeiten